Imagine 103

Spatiu comercial renovat - 160 mp - vitrina stradala - Delea Noua

ID: P89 Bucuresti, Calea Calarasilor 10
3.000€
Descriere
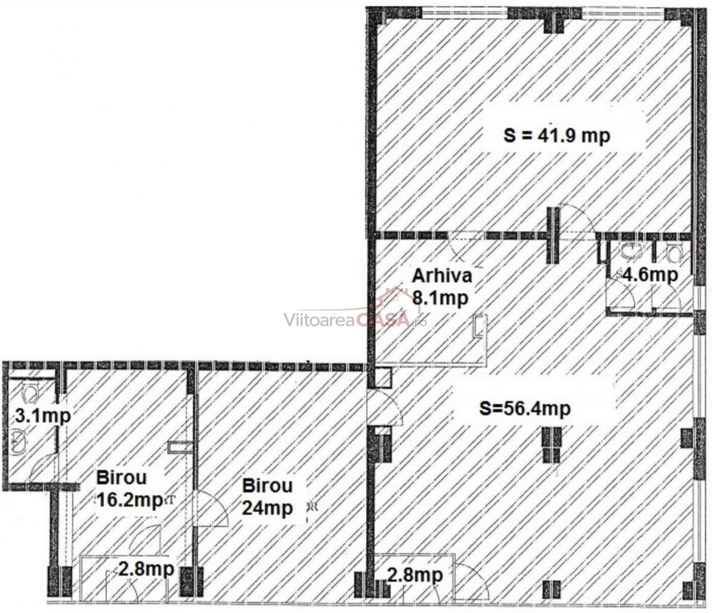
Se ofera spre inchiriere spatiu comercial cu suprafata utila de 160 mp, situat intr-o zona cu vad comercial bun si acces rapid la metrou si mijloace de transport.

Spatiul este compartimentat in 4 camere si 2 grupuri sanitare, cu posibilitate de recompartimentare in functie de activitate. A fost renovat recent si beneficiaza de vitrina stradala generoasa de aproximativ 15 m, geamuri tripan, centrala termica proprie si tablou electric propriu.

In spatele blocului exista rampa de acces pentru aprovizionare, un avantaj important pentru activitati comerciale.

Spatiul este potrivit pentru supermarket de proximitate, magazin alimentar, showroom, magazin electrocasnice, clinica, farmacie, salon sau alte activitati comerciale.

Detalii:
- Suprafata utila: 160 mp
- 4 camere + 2 grupuri sanitare
- Vitrina stradala aprox. 15 m
- Centrala termica proprie
- Tablou electric propriu
- Utilitati: apa si curent electric
- Rampa acces marfa
- Vad comercial bun
- Aer conditionat

Pentru detalii suplimentare sau programarea unei vizionari, va rugam sa ne contactati.
Caracteristici
  • ID:P89
  • Nr. camere:4
  • S. utila:160.00 mp
  • S. construita:180.00 mp
  • S. vitrina:15.00 m
  • Comp.:Compartimentat
  • Nr. bai:2
  • An constructie:1999
  • An renovare:2026
  • Structura rezistenta:Beton
  • Tip imobil:Bloc
  • Regim inaltime:P+10
Specificatii
Curent
Apa
Canalizare
Centrala proprie
Calorifere
Aer conditionat
Izolatie Interior
Vopsea lavabila
Faianta
Parchet
Gresie
Mocheta
Ferestre PVC
Apometre
Contor gaz
Nemobilat
Control electric individual
Administrare
Localizare
Magda Spataru
Consultant Imobiliar
Esti interesat de aceasta proprietate ?