Imagine 103

Metalurgiei -2 camere cu gradina - Comision 0%

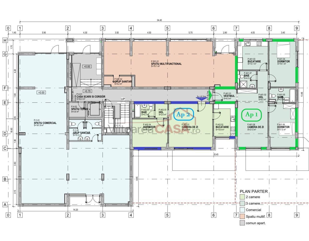
ID: P11 Bucuresti, Metalurgiei 42
137.299€ + TVA
Descriere
De vânzare direct dezvoltator - Faza 2-a - Bloc acte gata
🏡 Detalii proprietate:
✔️ Apartament decomandat, cu grădină privată perfectă pentru relaxare
✔️ Încăpere luminoasă, compartimentare practică și finisaje moderne
✔️ Cameră de zi + dormitor generos
✔️ Bucătărie spațioasă
✔️ Baie utilată
✔️ Centrală termică individuală – confort termic optim și facturi reduse
✔️ Încălzire în pardoseală pe parter și la ultimul nivel (unde este cazul)
✔️ Proiect cu lift modern și materiale de calitate în construcție
✔️ Spații comune verzi și loc de relaxare pentru locatari

🏢 Despre ansamblu:
➡️ Bloc construit pe structură P+3E+4 retras – cadre beton și cărămidă
➡️ Lift de 8 persoane
➡️ Panouri fotovoltaice pentru spațiile comune (eco & costuri reduse)
➡️ Centrală individuală și finisaje de calitate
➡️ Parcare inclusă (în funcție de ofertă)
➡️ Spații verzi și zonă sigură pentru familii

🌳 Locație premium:
📍 Zona Metalurgiei – Drumul Binelui – aproape de:
•⁠ ⁠centre comerciale: Kaufland, Lidl, Auchan, Metro, Jumbo
•⁠ ⁠parcuri și zone de agrement
•⁠ ⁠școli, grădinițe și facilități pentru copii
•⁠ ⁠mijloace de transport în comun
•⁠ ⁠acces rapid către DN și centură urbană
➡️ Zona este una dintre cele mai căutate pentru investiție sau locuire confortabilă, aproape de puncte de interes și servicii.

Pentru detalii si vizionari 0761132828
Caracteristici
  • ID:P11
  • Nr. camere:2
  • Nr. dormitoare:1
  • S. utila:84.00 mp
  • S. terase:23.20 mp
  • S. utila totala:84.00 mp
  • S. construita:100.80 mp
  • Comp.:Decomandat
  • Confort:1
  • Etaj:Parter
  • Nr. bucatarii:1
  • Nr. bai:1
  • Nr. parcari:1
  • Pret parcare:9.000€ + TVA
  • An constructie:2025
  • Structura:Beton
  • Tip imobil:Bloc
  • Regim inaltime:P+3
Specificatii
Curent
Apa
Canalizare
Gaz
Curent trifazic
Telefon
Acces internet
Fibra optica
Centrala proprie
Incalzire pardoseala
Aer conditionat
Izolatie Exterior
Vopsea lavabila
Faianta
Parchet
Gresie
Ferestre PVC
Usa intrare Metal
Usa interior Celulare
Terasa
Bucatarie Nemobilata
Contor caldura
Contor gaz
Nemobilat
Interfon
Lift
Gradina
Localizare
Deea Maxer Catarama
Fondator I Marketing Coordonator I Specialist Imobiliar
Esti interesat de aceasta proprietate ?
Proprietati similare
0% comision Rep. exclusiva De vanzare Imagine 791
Raritate: 2 Camere cu Grădină Privată de 46mp - Gata de Mutare
Dobroesti, Central 130.000€
2 camere 1 baie 51.25mp
0% comision Rep. exclusiva De vanzare Imagine 725
Dobroesti - 2 camere cu gradina
Dobroesti, Central 130.000€
2 camere 1 baie 51.25mp
De vanzare Imagine 641
Bd Dacia - 2 camere decomandat - etaj 5 din 8- bloc 1982 – metrou Obor
Bucuresti, Dacia 135.000€
2 camere 1 baie 51mp
0% comision De vanzare Imagine 454
Apartament 2 camere cu compartimentare in 3 camere posibila
Bucuresti, Metalurgiei 119.958€ + TVA
2 camere 1 baie 78mp
0% comision Rep. exclusiva De vanzare Imagine 754
RARITATE - 2 camere + grădină 46 mp - Comison 0 - loc parcare inclus
Dobroesti, Central 130.000€ 133.000€
2 camere 1 baie 51.25mp
0% comision Rep. exclusiva De vanzare Imagine 384
Comison 0 - 2 camere si grădină - Fundeni
Dobroesti, Central 130.000€ 133.000€
2 camere 1 baie 51.25mp